Перейти к контенту
Подбор и сравнение проектов домов от застройщиков Московской области
Подборщик домов
Калькулятор сметы
Калькулятор площади
Форум
Блог
Главная
›
Каталог проектов
›
Проект U-296-1K
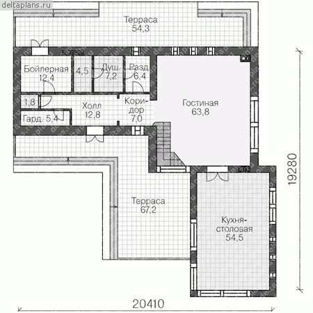
Проект U-296-1K
Застройщик: Юникс-Строй
296.03 м²
1 / 3
🏠
296.03 м²
📐
2 этаж
🧱
Кирпич
Похожие проекты
Похожие по цене
Похожие по площади
Проект U-332-1P
2 этаж
от 24 283 000 ₽
→
Проект F-296-1K
3 этаж
от 24 263 800 ₽
→
Проект U-347-1P
3 этаж
от 24 292 800 ₽
→
Проект F-296-1K
3 этаж
от 24 263 800 ₽
→
Проект J-297-1K
3 этаж
от 24 321 200 ₽
→
Дом из кирпича Проект КД-13
3 спальн. · 2 санузл.
от 420 000 ₽
→
На сайт застройщика