Перейти к контенту
Подбор и сравнение проектов домов от застройщиков Московской области
Подборщик домов
Калькулятор сметы
Калькулятор площади
Форум
Блог
Главная
›
Каталог проектов
›
Проект U-347-1P
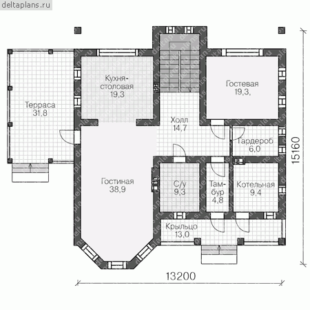
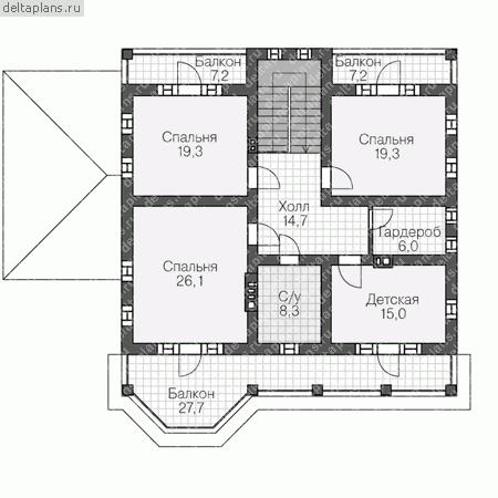
Проект U-347-1P
Застройщик: Юникс-Строй
347.04 м²
1 / 4
🏠
347.04 м²
📐
3 этаж
🧱
Пеноблок
Похожие проекты
Похожие по цене
Похожие по площади
Проект U-332-1P
2 этаж
от 24 283 000 ₽
→
Проект U-296-1K
2 этаж
от 24 274 460 ₽
→
Проект J-297-1K
3 этаж
от 24 321 200 ₽
→
Проект одноэтажной виллы Арх. Goebel (XIX в.) из бруса
2 спальн. · 2 этаж
от 26 081 179 ₽
→
Проект U-332-1P
2 этаж
от 24 283 000 ₽
→
Проект W-347-1K
3 этаж
от 28 478 600 ₽
→
На сайт застройщика