Перейти к контенту
Подбор и сравнение проектов домов от застройщиков Московской области
Подборщик домов
Калькулятор сметы
Калькулятор площади
Форум
Блог
Главная
›
Каталог проектов
›
Проект U-315-1P
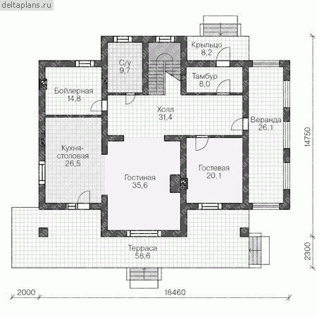
Проект U-315-1P
Застройщик: Юникс-Строй
315.43 м²
1 / 3
🏠
315.43 м²
📐
2 этаж
🧱
Пеноблок
Похожие проекты
Похожие по цене
Похожие по площади
Проект U-269-1K
2 этаж
от 22 066 200 ₽
→
Проект двухэтажного коттежда "Зеленый городок" из газобетона
6 спальн. · 3 этаж
от 22 104 000 ₽
→
Проект особняка Бавария NEW от компании БАКО
5 спальн. · 4 санузл. · 3 этаж
от 22 055 500 ₽
→
Проект C-316-1D
3 этаж
от 47 332 500 ₽
→
Проект V-315-1K
2 этаж
от 25 834 920 ₽
→
Проект U-315-1K
2 этаж
от 25 831 640 ₽
→
На сайт застройщика