Перейти к контенту
Подбор и сравнение проектов домов от застройщиков Московской области
Подборщик домов
Калькулятор сметы
Калькулятор площади
Форум
Блог
Главная
›
Каталог проектов
›
Проект U-319-1P
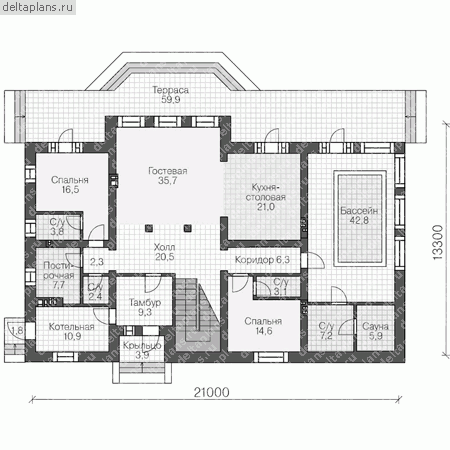
Проект U-319-1P
Застройщик: Юникс-Строй
319.04 м²
1 / 3
🏠
319.04 м²
📐
2 этаж
🧱
Пеноблок
Похожие проекты
Похожие по цене
Похожие по площади
Проект дома N-320-1P
3 этаж
от 22 330 000 ₽
→
Проект W-272-1K
2 этаж
от 22 336 800 ₽
→
Проект U-272-1K
2 этаж
от 22 358 120 ₽
→
Проект дома N-320-1P
3 этаж
от 22 330 000 ₽
→
Проект L-319-1K
2 этаж
от 26 149 800 ₽
→
Проект E-318-1K
2 этаж
от 26 141 600 ₽
→
На сайт застройщика