Перейти к контенту
Подбор и сравнение проектов домов от застройщиков Московской области
Подборщик домов
Калькулятор сметы
Калькулятор площади
Форум
Блог
Главная
›
Каталог проектов
›
Проект U-393-1K
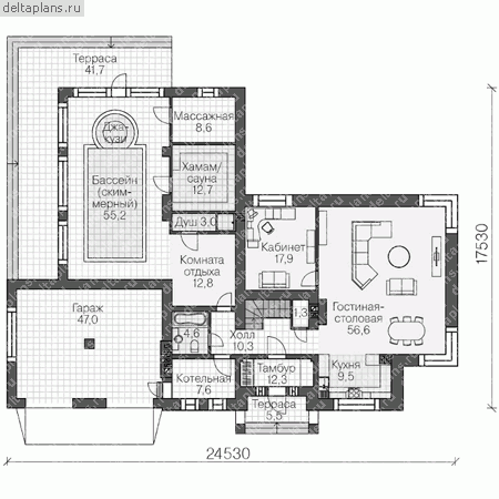
Проект U-393-1K
Застройщик: Юникс-Строй
393.0 м²
1 / 3
🏠
393.0 м²
📐
2 этаж
🧱
Кирпич
Похожие проекты
Похожие по цене
Похожие по площади
Проект S-395-1K
3 этаж
от 32 242 400 ₽
→
Проект G-214-1D
3 санузл. · 2 этаж
от 32 205 000 ₽
→
Проект «Салланш»
11 спальн. · 12 санузл.
от 32 200 000 ₽
→
Проект S-395-1K
3 этаж
от 32 242 400 ₽
→
Проект дома H-393-1P
2 этаж
от 27 524 000 ₽
→
Дом Ильинское из газобетона: заказать в Москве по низкой цене
3 спальн. · 3 санузл. · 2 этаж
от 14 600 000 ₽
→
На сайт застройщика