Перейти к контенту
Подбор и сравнение проектов домов от застройщиков Московской области
Подборщик домов
Калькулятор сметы
Калькулятор площади
Форум
Блог
Главная
›
Каталог проектов
›
Проект G-214-1D
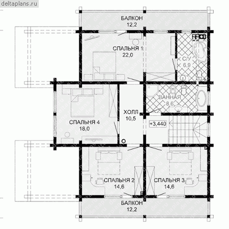
Проект G-214-1D
Застройщик: Юникс-Строй
214.7 м²
1 / 3
🏠
214.7 м²
🚿
3 санузл.
📐
2 этаж
🧱
Дерево
Похожие проекты
Похожие по цене
Похожие по площади
Проект «Салланш»
11 спальн. · 12 санузл.
от 32 200 000 ₽
→
Проект U-393-1K
2 этаж
от 32 226 000 ₽
→
Проект S-395-1K
3 этаж
от 32 242 400 ₽
→
Проект N-207-1P
2 этаж
от 15 038 800 ₽
→
Проект V-215-1P
2 этаж
от 15 017 800 ₽
→
Проект дома из газоблоков 16х11 ГББ-216: цена 9190000 руб.
5 спальн. · 3 санузл. · 2 этаж
от 13 590 000 ₽
→
На сайт застройщика