Перейти к контенту
Подбор и сравнение проектов домов от застройщиков Московской области
Подборщик домов
Калькулятор сметы
Калькулятор площади
Форум
Блог
Главная
›
Каталог проектов
›
Проект V-215-1P
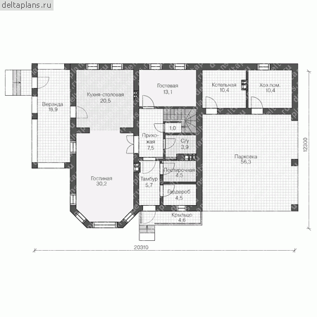
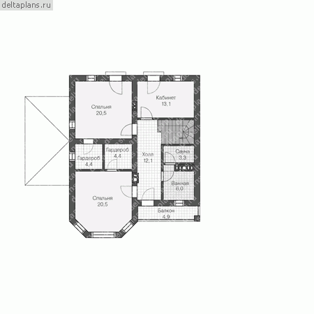
Проект V-215-1P
Застройщик: Юникс-Строй
214.54 м²
1 / 3
🏠
214.54 м²
📐
2 этаж
🧱
Пеноблок
Похожие проекты
Похожие по цене
Похожие по площади
Проект дома из керамоблоков 16х11 ТКБ-216: цена 9030000 руб.
5 спальн. · 3 санузл. · 2 этаж
от 15 019 000 ₽
→
Проект I-183-1K
2 этаж
от 15 015 840 ₽
→
Проект W-184-1K
2 этаж
от 15 022 400 ₽
→
Проект дома из газоблоков 16х11 ГББ-216: цена 9190000 руб.
5 спальн. · 3 санузл. · 2 этаж
от 13 590 000 ₽
→
Проект дома из керамоблоков 16х11 ТКБ-216: цена 9030000 руб.
5 спальн. · 3 санузл. · 2 этаж
от 15 019 000 ₽
→
Проект T-214-1P
1 этаж
от 15 008 000 ₽
→
На сайт застройщика