Перейти к контенту
Подбор и сравнение проектов домов от застройщиков Московской области
Подборщик домов
Калькулятор сметы
Калькулятор площади
Форум
Блог
Главная
›
Каталог проектов
›
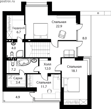
Проект W-184-1K
Проект W-184-1K
Застройщик: Юникс-Строй
183.2 м²
1 / 3
🏠
183.2 м²
📐
2 этаж
🧱
Кирпич
Похожие проекты
Похожие по цене
Похожие по площади
Проект U-183-1K
2 этаж
от 15 024 860 ₽
→
Проект дома из керамоблоков 16х11 ТКБ-216: цена 9030000 руб.
5 спальн. · 3 санузл. · 2 этаж
от 15 019 000 ₽
→
Проект V-215-1P
2 этаж
от 15 017 800 ₽
→
Проект одноэтажного дома "Георгин" из бруса
4 спальн. · 2 этаж
от 11 936 003 ₽
→
Енисей 5 (9x11)
5 спальн. · 5 санузл. · 2 этаж
от 9 386 000 ₽
→
Проект H-183-1P
2 этаж
от 12 824 000 ₽
→
На сайт застройщика