Перейти к контенту
Подбор и сравнение проектов домов от застройщиков Московской области
Подборщик домов
Калькулятор сметы
Калькулятор площади
Форум
Блог
Главная
›
Каталог проектов
›
Проект V-193-1P
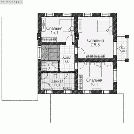
Проект V-193-1P
Застройщик: Юникс-Строй
193.16 м²
1 / 4
🏠
193.16 м²
📐
3 этаж
🧱
Пеноблок
Похожие проекты
Похожие по цене
Похожие по площади
Проект К-164 16 на 12, площадью 410 за 13 518 000 руб
4 спальн. · 2 этаж
от 13 518 000 ₽
→
Проект дома из газоблоков 13х12 ГББ-189: цена 9049000 руб.
6 спальн. · 2 санузл. · 2 этаж
от 13 532 000 ₽
→
Проект дома U-187-1P
2 этаж
от 13 533 800 ₽
→
Проект двухэтажного коттеджа "Тутси" из газобетона
4 спальн. · 2 этаж
от 9 623 000 ₽
→
Проект одноэтажного дома "Оригами-2" из бруса
2 спальн. · 2 этаж
от 12 005 231 ₽
→
Дом по проекту «ЗС 923-21» - Золотое Сечение
3 спальн. · 2 санузл.
от 24 125 000 ₽
→
На сайт застройщика