Перейти к контенту
Подбор и сравнение проектов домов от застройщиков Московской области
Подборщик домов
Калькулятор сметы
Калькулятор площади
Форум
Блог
Главная
›
Каталог проектов
›
Проект V-244-1P
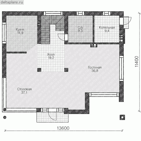
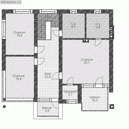
Проект V-244-1P
Застройщик: Юникс-Строй
243.47 м²
1 / 3
🏠
243.47 м²
📐
2 этаж
🧱
Пеноблок
Похожие проекты
Похожие по цене
Похожие по площади
Проект двухэтажного коттеджа "Ла Каса-1" из бруса
8 спальн. · 3 этаж
от 17 040 770 ₽
→
Проект G-208-1K
2 этаж
от 17 039 600 ₽
→
Проект U-243-1P
2 этаж
от 17 030 300 ₽
→
Проект W-244-1K
2 этаж
от 19 958 800 ₽
→
Проект одноэтажного дома "Иверия" из бруса
5 спальн. · 2 этаж
от 16 936 533 ₽
→
Проект L-243-1K
3 этаж
от 19 950 600 ₽
→
На сайт застройщика