Перейти к контенту
Подбор и сравнение проектов домов от застройщиков Московской области
Подборщик домов
Калькулятор сметы
Калькулятор площади
Форум
Блог
Главная
›
Каталог проектов
›
Проект W-244-1K
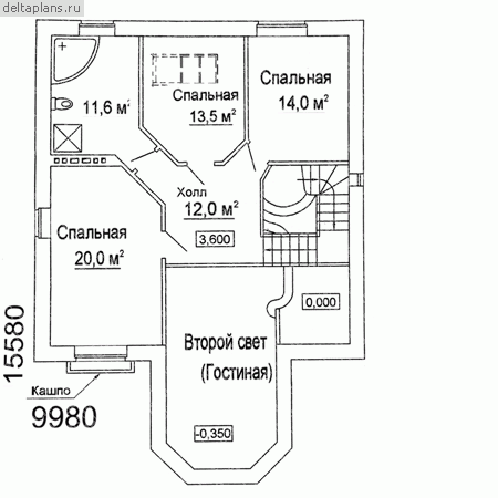
Проект W-244-1K
Застройщик: Юникс-Строй
243.4 м²
1 / 3
🏠
243.4 м²
📐
2 этаж
🧱
Кирпич
Похожие проекты
Похожие по цене
Похожие по площади
Дом с фасадом из натурального камня «Вильден»
3 спальн. · 3 санузл. · 2 этаж
от 19 962 000 ₽
→
Проект L-243-1K
3 этаж
от 19 950 600 ₽
→
Проект W-243-1K
3 этаж
от 19 950 600 ₽
→
Проект одноэтажного дома "Иверия" из бруса
5 спальн. · 2 этаж
от 16 936 533 ₽
→
Проект V-244-1P
2 этаж
от 17 042 900 ₽
→
Проект L-243-1K
3 этаж
от 19 950 600 ₽
→
На сайт застройщика