Перейти к контенту
Подбор и сравнение проектов домов от застройщиков Московской области
Подборщик домов
Калькулятор сметы
Калькулятор площади
Форум
Блог
Главная
›
Каталог проектов
›
Проект Y-183-1S
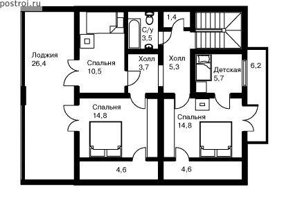
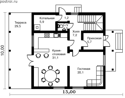
Проект Y-183-1S
Застройщик: Юникс-Строй
175.0 м²
1 / 3
🏠
175.0 м²
📐
2 этаж
🧱
Каркас
Похожие проекты
Похожие по цене
Похожие по площади
Строительство каркасного дома 9х9 "Абрамс" под ключ
3 спальн. · 2 санузл. · 1 этаж
от 3 445 000 ₽
→
Терем ЛК 1
4 спальн. · 1 санузл. · 2 этаж
от 3 443 000 ₽
→
Терем ЛК 1
4 спальн. · 1 санузл. · 2 этаж
от 3 443 000 ₽
→
СМ-2
2 санузл. · 1 этаж
от 11 950 000 ₽
→
Проект одноэтажного дома "Глория" из бруса
2 спальн. · 2 этаж
от 13 652 297 ₽
→
Проект одноэтажного дома"Тайфун" из бруса
4 спальн. · 2 этаж
от 14 000 633 ₽
→
На сайт застройщика